निर्धारित किये पत्रों /प्रारूप की सूची

अधिनियम की धारा 29 (3) के तहत आवेदित प्रकरणों में संलग्न दस्तावेजों की चेकलिस्ट -
भाग-1 (अधिनियम/नियम अनुसार आवष्यक)
1.1 नियम 14 (3), परिषिष्ट “ट“ प्ररूप “ड“ के अन्तर्गत आवेदन।
1.2 नियम 21 (2) में निर्धारित शुल्क का चालान अथवा साईबर ट्रेजेरी से जमा किये गये शुल्क का प्रमाण।
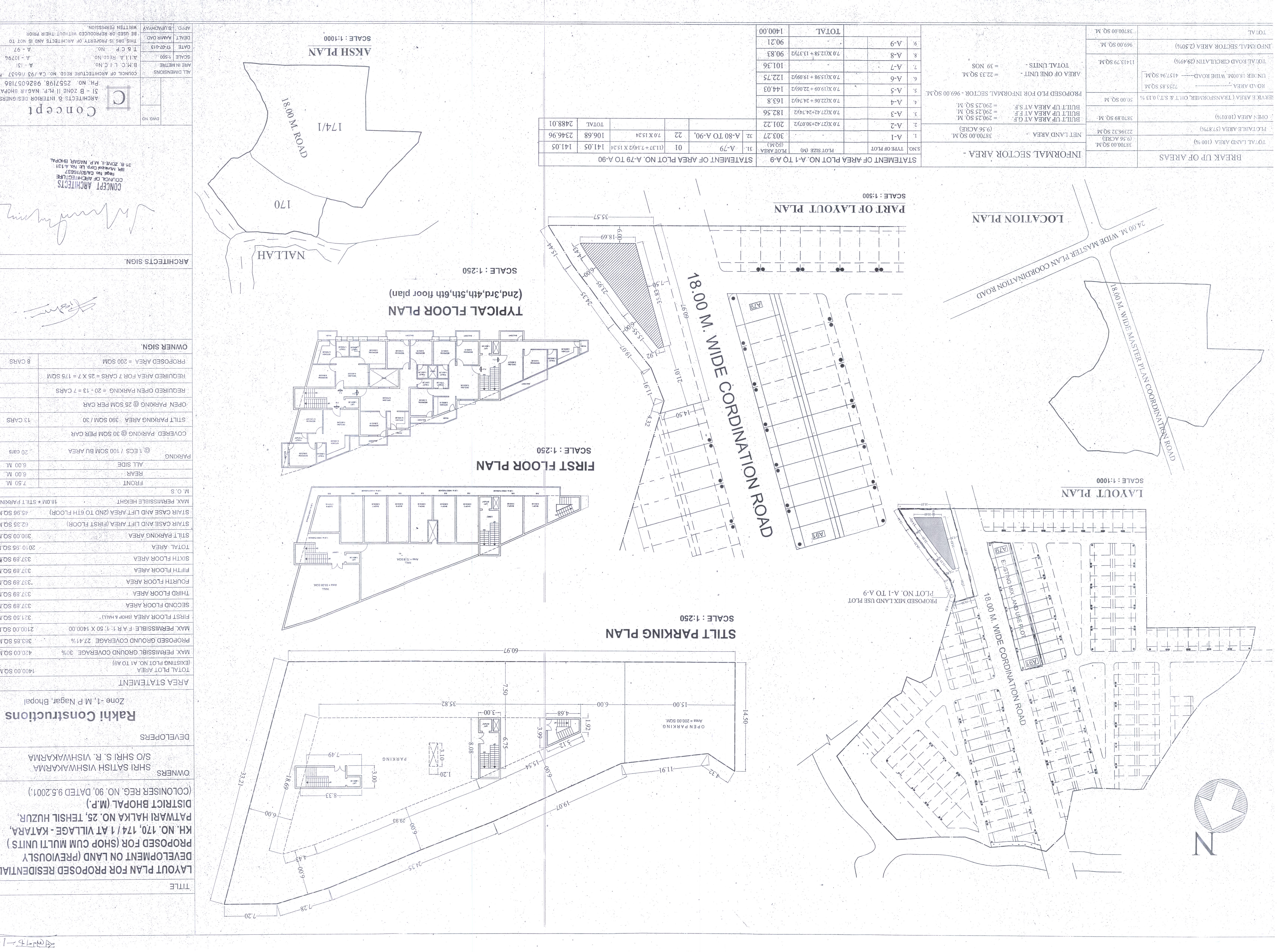
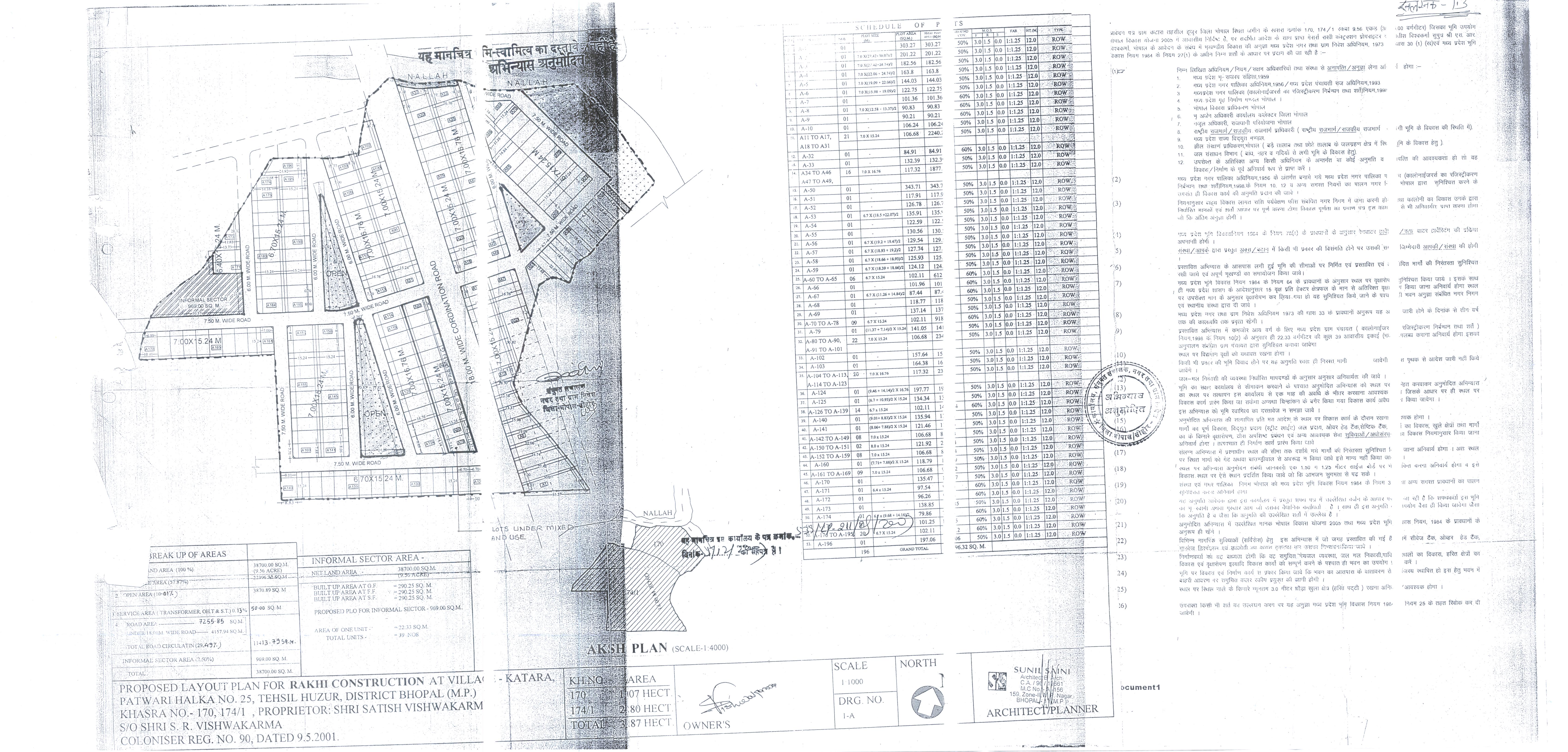
1.3 पूर्व स्वीकृत अभिन्यास की प्रति।
1.4 स्वीकृत अभिन्यास में पूर्व में किये गये कार्य का संक्षिप्त विवरण (पीले रंग में दर्षाये)।
1.5 पूर्व स्वीकृत अभिन्यास की प्रति पर प्रस्तावित संषोधन लाल रंग से दर्षाते हुये एक प्रति। (उसी स्केल में जैसा कि पूर्व में अनुमोदित किया गया है)
1.6. प्रष्नागत भूमि का खसरा नम्बर दर्षाते हुये खसरा प्लान के साथ भूमि तथा भूमि की बाहरी सीमा से 200 मीटर के भीतर आने वाले सटे खसरा नंबर भी हो , का विवरण। (प्रष्नागत भूमि लाल रंग से दर्षायी जावे)
1.7 नवीन अभिन्यास की चार प्रतिया (जो कि अंतिम अभिन्यास होगा, यदि संषोधित उसी स्केल में अनुज्ञात किया गया हो जैसा कि पूर्व में अनुमोदित किया गया था) सक्षम वास्तुविद/संरचना इंजीनियर/इंजीनियर/पर्यवेक्षक/ नगर योजनाकार द्वारा अभिप्रमाणित।
1.8 एक सामान्य रिपोर्ट दर्षाते हुये कि प्रस्तावित विकास में संषोधन क्यों किये जा रहे हैं।
1.9 उन व्यक्तियों की एक सूची जिनके प्रस्तावित उपांतरणों से प्रभावित होने की संभावना है। (व्यक्तियों के नाम एवं विस्तृत पते सहित सूची संलग्न की जाये जिन्हें भूमि/भवन या इनका भाग या भू-खण्ड विक्रय किये गये हों या उनके पक्ष में बुक (निर्धारित) कर दिया गया हो या किसी भी तरीके से प्रभावित हो सकते हों)
1.10 व्यक्तियों या संस्थाओं की सूची जिसने आवेदक/विकासकर्ता को कोई ऋण उपलब्ध कराया है और ऐसे ऋण उपलब्ध कराने हेतु प्रतिभूतियों का स्पष्ट विवरण।
1.11 यदि कोई भूमि या भवन या उसका कोई भाग या कोई भू-खण्ड किसी प्रकार से किसी व्यक्ति को बंधक (मार्डगेज) रखा गया हो या कोई परियोजना के किसी भाग पर कोई ऋणभार (इन्कम्बे्रन्स) उत्पन्न हुआ हो तो उसका विस्तृत विवरण।

1.12 विकास प्राधिकरण की अनापत्ति की अभिप्रमाणित प्रति ।
भाग -2 (संचालनालय द्वारा प्राप्त निर्देषों के अनुसार)
2.1 विकास कार्य के पर्यवेक्षण का प्रमाण - पत्र।
2.2 शपथ-पत्र (शपथ-पत्र का प्रारूप संलग्न)
2.3 परियोजना का नाम
भाग-3:-संबंधित जिला कार्यालय/ अधिकारी द्वारा अपेक्षित

टीप - नियम का आषय मध्य प्रदेष भूमि विकास नियम, 2012